-
10/ 10"Très beau camping. Excellent accueil"Christiane R Posté le 23/10/2024 - En jeune couple CONFORT FAMILY Loggia NON CLIMATISÉdu 19/10/2024 au 22/10/2024
Avis sur le camping
La propreté du mobilhome et l'espace autour sont très appréciables. Accueil sympathique.
Avis sur l'hébergement - CONFORT FAMILY Loggia NON CLIMATISÉ
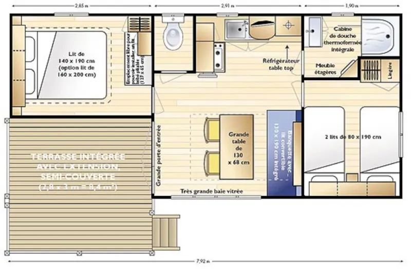
La grande baie vitrée permet au soleil de tempérer le mobilhome en cette saison automnale.
-
7,29/ 10"Vacances"Gerard C Posté le 13/08/2024 - En jeune couple CONFORT FAMILY Loggia NON CLIMATISÉdu 09/08/2024 au 12/08/2024
Avis sur le camping
Camping sympa et calme
Avis sur l'hébergement - CONFORT FAMILY Loggia NON CLIMATISÉ
Propre
Manque de climatisation trop chaud en journée
-
9,29/ 10"perfect"Robert F Posté le 31/07/2024 - Family with child(ren) CONFORT FAMILY Loggia NON CLIMATISÉdu 27/07/2024 au 30/07/2024
Avis sur le camping
awesome and quiet little camping place
Avis sur l'hébergement - CONFORT FAMILY Loggia NON CLIMATISÉ
comfy homes in different categories
Les autres locations de l'établissement
- Superficie totale (en m²) : 25
- Animaux : acceptés sous conditions
- Chambre(s) séparée(s) : 2
- Couchage(s) hors chambre : 0
- Cuisine
- Salle(s) de bain
- WC
- Chauffage
- Terrasse
Disponibilités & réservation en ligne
Services et équipements
Animaux
Avis clients de l'hébergement*
9,19/10
3 avis disponibles
