Les autres locations de l'établissement

Life Pmr - 2 Ch. (Samedi) - 2 Adultes Max

2/4 personnes
Retour à la page de l'établissement
Life Pmr - 2 Ch. (Samedi) - 2 Adultes Max
Life Pmr - 2 Ch. (Samedi) - 2 Adultes Max
Life Pmr - 2 Ch. (Samedi) - 2 Adultes Max
Life Pmr - 2 Ch. (Samedi) - 2 Adultes Max
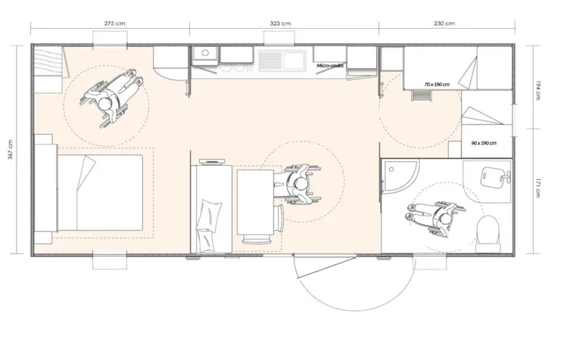
  • Superficie totale (en m²) : 30
  • Accès handicapé : oui
  • Chambre(s) séparée(s) : 2
  • Couchage(s) hors chambre : 0
  • Cuisine
  • Salle(s) de bain
  • WC
  • Chauffage
  • Télévision
  • Terrasse
  • Animaux non acceptés

PMR – Accessible aux personnes à mobilité réduite.

Life PMR 2 chambres – Animaux refusés

4 personnes max - 2 adultes et 2 enfants

Superficie : 30.5m² avec terrasse semi couverte de 15m² - 2 chambres


SES ATOUTS: toutes les pièces sont accessibles en fauteuil roulant. Salle d’eau avec douche à l’italienne et son siège pvc.


1 Chambre avec : 1x Lit double 140x190

1 Chambre avec : 1x Lit simple 80x190 + 1x Lit superposé 70x180 (pour enfant 6/10 ans -45 kg)

Inclus : oreillers, couettes 

En supplément (sur demande) : draps

Spécificités : possibilité de mettre un lit bébé dans l'une des chambres

Disponibilités & réservation en ligne

Chargement en cours...

Services et équipements

Général
Animaux
Chambres & Couchages
Cuisine & Sanitaires
Nettoyage
Equipement intérieur
Equipement extérieur
Sécurité & parking
Infos pré et post réservation