-
8,3/ 10"….."Sulamita B Posté le 03/06/2025 - En famille avec enfant(s) PALMERESdu 30/05/2025 au 01/06/2025
Avis sur le camping
Increíbles me encantó
Réponse de l'établissement
Estimada Sulamita; ¡Mil gracias por su excelente comentario! Es la mejor recompensa para todo el equipo sabiendo que ha disfrutado de su estancia. Esperamos volver a recibirle muy pronto por nuestras instalaciones. Un cordial saludo, El equipo Camping Platja Cambrils
Avis sur l'hébergement - PALMERES
Genial me encantó
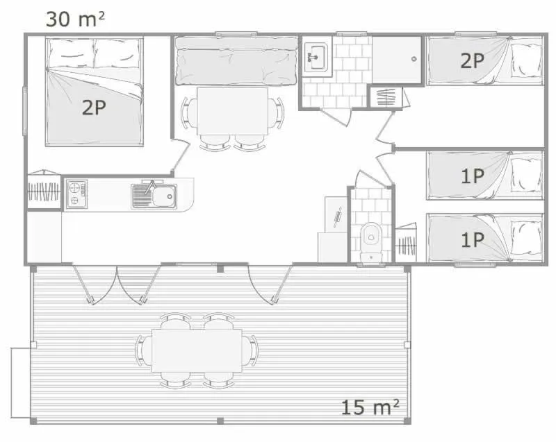
- Superficie totale (en m²) : 45
- Chambre(s) séparée(s) : 3
- Cuisine
- Salle(s) de bain
- WC
- Chauffage
- Climatisation
- Télévision
- Terrasse
- Animaux non acceptés
Bungalow de 30 m² complètement équipé, avec une capacité maximale de 6 personnes. Cet hébergement spacieux comprend une terrasse de 15 m² ou un espace jardin, équipé de mobilier d'extérieur. Il est climatisé et dispose de trois chambres : une avec un lit double et deux avec des lits simples. De plus, il comprend des toilettes avec douche, un salon-salle à manger avec cuisine intégrée équipée d'une télévision, de la vaisselle, d'un kit de nettoyage (balai, ramasse-poussière, serpillière), d'un réfrigérateur, de plaques de cuisson, d'une cafetière « Dolce Gusto », et d'un micro-ondes. Le bungalow offre également un coffre-fort, un parking pour un véhicule et un barbecue pour profiter de l'extérieur.
À noter :
• Les photos ne sont pas contractuelles.
• Pas de draps ni de serviettes fournis.
• Animaux non admis.
• Heure d'arrivée : de 16h00 à 23h00
• Heure de départ : de 8h00 à 11h00
Disponibilités & réservation en ligne
Services et équipements
- Animaux non acceptés
- Pelle
- Balai
- Seau
- Serpillère
- Poubelle
- Brosse WC
