Les autres locations de l'établissement

Chalet Romarin Basique +

1/5 personnes
Retour à la page de l'établissement
Chalet Romarin Basique +
Chalet Romarin Basique +
Chalet Romarin Basique +
Chalet Romarin Basique +
Chalet Romarin Basique +
Chalet Romarin Basique +
Chalet Romarin Basique +
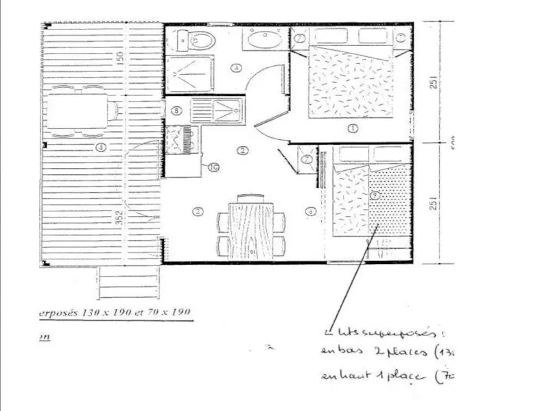
  • Superficie totale (en m²) : 22
  • Accès handicapé : non
  • Animaux : acceptés sous conditions
  • Chambre(s) séparée(s) : 2
  • Couchage(s) hors chambre : 2
  • Cuisine
  • Salle(s) de bain
  • WC
  • Chauffage
  • Terrasse

ROMARIN = CHALET bois - 5 PERSONNES MAXIMUM - 22 m². Chalet bois double vitrage et isolation chaud-froid comprenant : - Coin cuisine (4 feux gaz, 1 réfrigérateur, 1 cafetière électrique, 1 hotte aspirante et plusieurs placards avec la vaisselle pour 5 personnes) - Coin repas (1 table en bois, 4 chaises et un tabouret) - Une salle de bains (cabine de douche, lavabo avec placard dessous, toilettes) - une chambre avec un lit de 140cm x190cm (2 oreillers 1 couette) et 2 placards penderie - une deuxième chambre fermée par une paroi coulissante avec couchages superposés (en bas 120cm x190cm, en haut 70cm x 190cm, 2 couettes et 3 oreillers) - une grande terrasse couverte avec salon de jardin - Parking 1 voiture à proximité. - Possibilité de louer les draps, serviettes et plancha à gaz sur place - Les animaux sont admis dans ces chalets contre supplément et sous conditions - Possibilité de demander un forfait ménage de fin de séjour contre supplément (sinon, n'oubliez pas vos produits de nettoyage)

Disponibilités & réservation en ligne

Chargement en cours...

Services et équipements

Général
Animaux
Chambres & Couchages
Cuisine & Sanitaires
Nettoyage
Equipement intérieur
Equipement extérieur
Sécurité & parking
Infos pré et post réservation

Avis clients de l'hébergement*

9,31/10
6 avis disponibles
  • 9,56/ 10
    "Très bon séjour"
    Gaetan Z Posté le 14/06/2025 - Autre Chalet ROMARIN basique +du 06/06/2025 au 08/06/2025

    Avis sur le camping

    L'accueil et le site

    Avis sur l'hébergement - Chalet ROMARIN basique +

    Lemplacement

    Manque Climatisation

  • 10/ 10
    "Super mini sejour"
    stephanie P Posté le 18/04/2025 - En famille avec adolescent(s) Chalet ROMARIN basique +du 15/04/2025 au 17/04/2025

    Avis sur le camping

    Très agréable (petit)séjour.tout était conforme aux attentes.es hôtes sont au petit soin pour les vacanciers,le chalet est bien.si vous aime le calme,la verdure,vous êtes au bon endroit

    Avis sur l'hébergement - Chalet ROMARIN basique +

    L emplacement et le calme

  • 9,56/ 10
    "Super séjour"
    ROBERTO C Posté le 10/08/2024 - En famille avec adolescent(s) Chalet ROMARIN basique +du 27/07/2024 au 03/08/2024

    Avis sur le camping

    L'accueille .les sourires ,les conseils,la convivialité.

    Avis sur l'hébergement - Chalet ROMARIN basique +

    La tranquilité

  • 9,33/ 10
    "INOUBLIABLE WEEK END DE COUSINADE"
    Ana T Posté le 02/07/2024 - Entre amis Chalet ROMARIN basique +du 07/06/2024 au 09/06/2024

    Avis sur le camping

    Le dévouement des gérants pour que les 44 personnes de notre cousinade passent un très agréable week end.

    Avis sur l'hébergement - Chalet ROMARIN basique +

    Propreté

    accessibilité au chalet pas pratique, manque d equipements dans ce chalet/

  • 9,44/ 10
    "A recommander"
    CLAUDINE D Posté le 14/05/2024 - Autre Chalet ROMARIN basique +du 09/05/2024 au 12/05/2024

    Avis sur le camping

    Excellent Accueil,camping familial calme,chaleureux ou on s'y sent bien

    Avis sur l'hébergement - Chalet ROMARIN basique +

    Propre et confortable

  • 9,67/ 10
    "Instalaciones y Trato excelentes"
    Jordi L Posté le 30/06/2025 - En pareja joven Chalet ROMARIN basique +du 20/06/2025 au 29/06/2025

    Avis sur le camping

    Entorno natural muy bonito, instalaciones del camping muy correctas, tranquilidad. Però sobretodo destacar el trato tan agradable de la família que regenta el camping (Mari y David) son muy amables y te facilitan información del entorno, también destacar el buen servicio de restauración

    Avis sur l'hébergement - Chalet ROMARIN basique +

    Esta bien cuidado, buena separación entre bungalows

    Estaría bien un microondas

Avis affichés par ordre chronologique
*Avis datés de moins de 3 ans et soumis à un contrôle. En savoir plus